





Bể phốt là hạng mục ngầm trong công trình, đóng vai trò Cực kỳ quan trọng trong việc xử lý các chất thải rắn trong công trình dân dụng. Bể phốt đóng vai trò đảm bảo các vấn đề về Vệ sinh Môi trường và quyết định đến điều kiện sử dụng bình thường của công trình.
Chức năng bể phốt:
Một cái bể phốt tiêu chuẩn phải đáp ứng được ba chức năng:
- Lưu trữ các loại Chất thải ở dạng chất rắn.
- Lưu trữ bọt váng và bùn.
- Xử lý về mặt sinh học Chất thải hữu cơ đủ điều kiện để thải ra hệ thống thoát nước thành phố.
Cấu tạo và nguyên lý hoạt động bể phốt
– Ngăn chứa : Nước thải trực tiếp đi vào chiếm 1/2 thể tích bể, phần lớn các cặn sẽ được lắng xuống và phân huỷ yếm khí.
– Ngăn lắng : Nước thải qua ngăn lắng chiếm 1/4 thể tích bể còn lại, tại đây các cặn lơ lửng tiếp tục phân huỷ yếm khí dưới ảnh hưởng của các vi sinh vật yếm khí. Nhờ vậy các chất hữu cơ bị phân hủy một phần tạo thành các chất khí và một phần tạo thành các chất vô cơ hòa tan.
– Ngăn lọc : Nước thải qua ngăn lọc chiếm thể tích 1/4 của bể, ngăn này vẫn còn chứa nhiều hợp chất hữu cơ do đó cần phải thêm thời gian để phân huỷ tiếp rồi thoát ra ngoài.
Bên cạnh đó, lỗ thông hơi của bể phốt rất quan trọng để lượng khí hình thành trong quá trình lên men không bị tích tụ, nên bạn cần lưu ý trong quá trình thi công.
Ống thông hơi thường được thiết kế đi lên mái, vượt qua mái khoảng cách ít nhất là 30cm và có ống quay ngang để tránh mưa các vật rơi vào làm tắc ống và tránh được mùi thoát ra từ bể phốt gây ô nhiễm xung quanh.
Phân loại bể phốt:
Bể phốt 2 ngăn:
Bể phốt hai ngăn gồm một ngăn chứa phân và một ngăn dùng để lắng phân hầm cầu trước khi những chất thải đã được lọc thải trực tiếp ra bên ngoài.
Nếu chia bể phốt làm ba phần thì ngăn chứa sẽ chiếm hai và một phần dành cho ngăn còn lại. Nguyên tắc hoạt động củ bể phốt hai ngăn: chất thải sau khi được thải từ bồn cầu xuống hầm chứa thứ nhất sẽ được giữ lại những hợp chất dễ phân hủy và thành chất bùn, phần nước còn tồn đọng sẽ theo ống thông qua bể lắng.
Ở giai đoạn này nước được lọc lại loại bỏ những tạp chất cũng như làm giảm bớt mùi trước khi được thải trực tiếp ra môi trường.
Ưu nhược điểm: Phù hợp với những hộ gia đinh có diện tích nhỏ, tiết kiệm chi phí và thời gian thi công, tỉ lệ rủi ro thấp và có độ bền rất cao. Nhược điểm của nó là xử lý chất thải không hiệu quả.
Bể phốt 3 ngăn:
Bể phốt ba ngăn chia ra hai loại tùy vào nhu cầu của gia đình bao gồm: 1 chứa – 2 lắng hoặc 1 chứa – 1 lắng – 1 lọc, trong đó loại thứ Hai (1 chứa – 1 lắng – 1 lọc) thường được đưa vào sử dụng phổ biến hơn.
Chúng ta sẽ tìm hiểu kĩ hơn về loại gồm 3 ngăn là chứa, lắng, lọc. Nếu chia bể phốt ba ngăn ra làm bốn phần thì ngăn chứa sẽ chiếm hai phần, hai phần còn lại chia đều cho hai ngăn lắng và lọc.
Phần ngăn chứa nguyên tắc hoạt động của nó cũng giống như bể phốt hai ngăn. Khác ở đây là các chất thải được lọc kĩ hơn thêm một vòng nữa trước khi thải ra môi trường.
Ưu nhược điểm: Việc xây dựng bể phốt 3 ngăn sẽ tốn diện tích và chi phí hơn so với bể phốt 2 ngăn. Tuy nhiên, loại bể này đảm bảo nước thải đủ điều kiện thải ra hệ thống thoát nước thành phố
Tầm quan trọng của bể phốt
Bể phốt đóng vai trò cực kỳ quan trọng trong việc xử lý các chất thải trong nhà. Nếu thiết kế và thi công không đúng tiêu chuẩn thì chất thải sẽ không được xử lý, lâu dần gây ra mất vệ sinh cho môi trường, ảnh hưởng đến sức khỏe của gia chủ và sự hoạt động bình thường của công trình.
Với tầm quan trọng như vậy nên các gia chủ cần lưu tâm trong quá trình thiết kế và thi công bể phốt.
Qua kinh nghiệm thực tiễn đút rút từ việc thi công hàng trăm căn nhà ở các địa điểm khác nhau, chúng tôi chia sẻ một số kinh nghiệm trong việc thiết kế và thi công bể phốt.
Vị trí đặt bể phốt trong nhà ống
Theo tín ngưỡng người Đông Nam Á chúng ta thì vấn đề phong thủy luôn được đặt lên hàng đầu, nó như một tác động vô hình đến tài lộc, may mắn, thành công trong công việc… hay thậm chí những điều xui xẻo cũng có thể đến với chúng ta nếu chúng ta không chọn được vị trí thích hợp.
Đã từ xa xưa, ông cha ta đã có những nghiên cứu đi sâu về vấn đề phong thủy và nhiều người vẫn chưa hình dung rõ về phong thủy là gì.
Họ cứ tưởng phong thủy phụ thuộc vào hướng nhà, màu sắc nhà cửa… nhưng thực ra thì còn rất nhiều vấn đề khác mà chúng ta cần phải chú ý đến những gì liên quan đến đất đá.
Bởi đất cát chính là nơi ta dựng nhà, đào móng, nơi chúng ta lập nghiệp, ngoài việc xem ngày giờ đào móng, đặt hướng nhà thì vấn đề bể phốt cũng cần được quan tâm khi bạn có dự định xây mới ngôi nhà hoặc nâng cấp ngôi nhà lên một tầm cao mới
Bể phốt là nơi chứa nước nên bản chất của nó là hành thủy. Khi mà dòng chảy được xuyên xuất thì mới mang lại hưng thịnh, bình an cho gia chủ.
Tuy nhiên khi dòng chảy quá nhanh sẻ tạo ra luồng khi gây sát thương cho gia chủ. Một dòng chảy xuyên suốt, êm đềm sẻ tạo ra sự bình an, tài lộc, sức khỏe cho gia chủ
Bể phốt cũng giống như vực nước ao hồ phải lun trong trạng thái đầy đủ nhưng không được tụ đọng. Tức là có ra, có vào nhưng vào nhiều hơn ra. Người xưa thường có câu tiền vô như nước sông đà, tiền ra nhỏ giọt như cafe Phin!!!
Còn trường hợp đặt bể phốt ngoài nhà là lựa chọn hợp lí bởi không gian thiết kế được rộng rãi hơn, tiện cho việc xử lí thông hút định kì, tuy nhiên tránh đặt bể phốt ở sân trước nhà điều này không tốt cho lắm
Trên thực tế bất cứ hệ thống nhà ở nào cũng đều tận dụng phần móng nhà để xây dựng bể phốt nhằm tiết kiệm tối đa diện tích cho ngôi nhà.
Tuy nhiên theo các chuyên gia về phong thủy nghiên cứu cho thấy thì điều này thật sự không tốt, về lâu dài sẻ gây ảnh hưởng đến gia chủ do điềm xấu từ kiểu xây bể phốt này tạo nên
Những điều cấm kị khi xây dựng bể phốt trong nhà ống
Sơn chủ tức là phần lưng của ngôi nhà. Tuyệt đối không được đặt bể phốt tại vị trí này. Ví dụ, khi ta nói nhà hướng Nam bắc thì lưng sẻ hướng Nam và mặt tiền sẻ hướng Bắc
Khi xây dựng bể phốt bạn cần chú ý tránh 3 cung sau tuy nhiên cũng tùy thuộc vào căn và cung của mỗi người nữa nhưng thông thường thì áp dụng một số cung dưới đây
Không nên đặt bể phốt tại cung đào hoa, nếu không sẻ phạm phải thế sát “Đào hoa phiếm thủy”, trường hợp này sẻ khi gặp vợ chồng có tuổi xung khắc thì có thể tạo ra không ít sóng gió cho gia đình.

Có một số trường hợp khi xây bể phốt phạm phải Đào hoa phiếm thủy thì vợ chồng đang yên yên lành lành bổng nhiên đòi chia tay, ngoại tình, ghét nhau, thậm chí lí dị. Điều này là có thật nhé
Cung khôn: (hướng Tây Nam) và cung Cấn (Đông Bắc) vì sẽ phạm phải thế Thủy Thổ tương khắc. Khi bạn đã phạm vào cung này nó sẻ khiến gia chủ mắc phải bênh về thận, đường tiêu hóa, thậm chí những người thân trong gia đình bạn cũng chịu ảnh hưởng không ít.
Cung đoài: Thường tạo cho gia cảnh nghiện ngập, cờ bạc, trai gái, rượu chè…
Cung ngọ: Phạm phải cung này nó sẻ khiến gia chủ mắc phải bệnh về mặt, tiền đình
Vị trí bể phốt tốt cho gia chủ
Vị trí tốt để đặt bể phốt là trên các thiên can Giáp, Ất, Bính, Canh, Qúy, Nhâm. Vì theo phong thủy thì thế vạn thủy vô tòng thiên bạn khứ tức là mọi dòng nước đều đi theo thiên can.
Khi chia chiều dài ngôi nhà ra làm 3 phần thì nếu như phòng khách của gia đình bạn nằm hẵn ở phần trước hoặc phần sau nhà thì việc đặt bể phốt ở giữa phòng khách chưa hẵn đã xấu và nếu hầm cầu nằm trọn trong cung xấu so với tuổi của gia chủ thì bạn có thể hoàn toàn yên tâm
Tuy nhiên có một điều khá kị là phòng khách nằm giữa ngôi nhà mà vị trí bể phốt nằm tại trung tâm ngôi nhà thì không nên. Xét về yếu tố phong thủy sẻ gây ảnh hưởng đến sức khỏe gia chủ
Ngoài ra, nếu bạn có ý định xây dựng bể phốt rộng, bao trùm toàn phần của ngôi nhà thì điều này lại không nên làm
Nếu bạn đã xây dựng hệ thống bể phốt theo kiểu này mà bạn cảm thấy gia đình bạn không yên ổn tốt nhất nên xây mới lại hệ thống bể phốt khác đồng thời lấp bể phốt cũ
Thêm một điều lưu ý nữa là không nên đặt phòng ngủ nằm trên bể phốt vì xét theo phong thủ, phòng ngủ vốn đã mang tính âm nay kết hợp bể phốt tính âm nữa thì sẻ gây ảnh hưởng ít nhiều đến sức khỏe gia đình bạn và có thể khiến ta mắc một số căn bệnh như phù thũng, thấp khớp, suy thận dương, rối loạn tiêu hóa và nhiều bệnh nguy hiểm về máu huyết.
Cách đặt bể phốt trong nhà ống
Khi mà gia đình bạn có đầy đủ diện tích thì không có lí do nào bạn lại đặt bể phốt trong nhà ống, hãy chọn một vị trí thoáng, kín đáo, vừa hợp phong thủy, vừa đảm bảo vệ sinh khu bạn đang sinh sống.
Hãy đặt bể phốt phía sau vườn, thiết kế bể phốt đơn giản, dễ xử lí khi bể phốt đầy nước

Tuy nhiên đối với những gia đình ở khu vực thành thị thì sẻ rất khó đặt bể phốt hợp theo phong thủy tuy nhiên khi bạn áp dụng và tránh được những điều tối kị trên thì bạn sẻ giảm được ác hạ và xung xác cho gia đình bạn
Với bài viết trên chắc hẵn bạn đã tìm được câu trả lời cho câu hỏi “Cách đặt bể phốt trong nhà ống” Mọi thắc mắt đã được giải quyết
Có nên đặt bể phốt dưới gầm cầu thang
Ưu điểm
Đối với những căn hộ có diện tích khá chật hẹp thì đặt bể phốt dưới gầm cầu thang là một giải pháp hợp lí. Nó sẻ giúp bạn tiết kiệm được diện tích tối đa cho ngôi nhà
Điểm tiếp xúc giữa bồn cầu và bể phốt trở nên gần hơn, đường ống nước thải sẻ ít gấp khúc thuận tiện cho việc thoát nước thải một cách hiệu quả và dễ dàng hơn rất nhiều
Một phần nữa là cũng tiện cho quá trình sinh hoạt
Bể phốt dưới gầm cầu thang
Nhược điểm
Thông thường những ai có bản vẽ thiết kế này thường đặt kết hợp nhà vệ sinh với nhà tắm lại với nhau vì thế diện tích nhà vệ sinh sẻ không đạt như ý muốn, không gian sinh hoạt sẻ bị gò bó, không được thoải mái cho lắm.
Với một không gian chật hẹp sẻ khiến cho việc thông hút hầm cầu, bể phốt, xử lí sự cố tắc nghẽn sẻ trở nên khó khăn hơn
Có thể gây ra hiện tượng nức sàn nhà vì kết cầu nhà vệ sinh thường rỗng, và thậm chí sụt lỡ gầm cầu thang nếu thiết kế độ dày diện tích gầm cầu thang không đúng yêu cầu kĩ thuật
Ngoài ra, bạn cũng không nên đặt bể phốt dưới bếp, điều này có thể tạo ra hung khí cũng như làm suy giảm tài lộc trong gia đình
Khuyến nghị Quy trình thi công Bể phốt từ Công ty Gia Việt

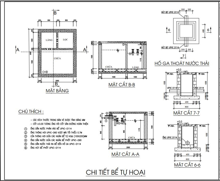
Bản vẽ Bể phốt chuẩn trong Khu đô thị do Gia Việt – Tư vấn & Thiết kế
2. Đổ bê tông đáy bể phốt

Đan sắt Đổ bê tông Đáy bể phốt
3. Xây thành bể phốt bằng đá chẻ đôi (kích thước 25x25x50)

Xây thành bể phốt bằng Đá chẻ
4. Xây vách ngăn bể Chứa, lắng, lọc bằng gạch thẻ đặc 5x10x20

Nghiệm thu xây Vách ngăn bằng gạch thẻ đặc
5. Đặt hệ thống ống và đấu nối hệ thống ống bể phốt

Đấu nối hệ thống ống thoát Vệ sinh với Bể phốt
6. Tô thành trong và vách ngăn, Chống thấm bể phốt

Tô thành trong và chống thấm bằng nước Hồ dầu và Sika Latex
7. Đổ đan bê tông, chừa ống hút d114

Đổ nắp đan bể bằng Bê tông có đan thép, đặt ống d114 để hút hầm nếu bị đầy hầm
8. Nghiệm thu đấu nối trước khi Đóng Đan bể Phốt

Nghiệm thu đóng nắp Bể phốt và định vị vị trí Ống chờ để Hút sau này






